Informacje
Biuro 199,36m² | Centrum Koszalina, ul. Armii Krajowej 8
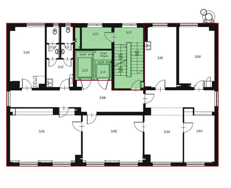
3 piętro, Ścisłe Centrum
Wyjątkowa lokalizacja:
- Ścisłe centrum Koszalina, naprzeciw dworca PKP i PKS
- Doskonała komunikacja: większość linii autobusowych przy budynku
- Dwupasmowa ulica Armii Krajowej – szybki dojazd z całego miasta
- Rozwinięta infrastruktura: liczne lokale gastronomiczne, usługowe, handlowe, banki, urzędy w bezpośrednim sąsiedztwie
Dogodne parkowanie:
- Duży parking bezpośrednio obok budynku od strony ul. Jana z Kolna
- Dodatkowy obszerny parking naprzeciwko budynku (pośrodku ul. Armii Krajowej)
Charakterystyka lokalu:
- Powierzchnia: 199,36 m² na 2 piętrze biurowca (standard bankowy)
- 7 pomieszczeń biurowych (po 13–33m²)
- Przestronny korytarz (26,52 m²) idealny na recepcję lub strefę wspólną
- Pomieszczenie sanitarne (2 toalety + przedsionek)
- Możliwość dowolnej aranżacji wnętrza
- Spektakularny widok panoramiczny na Koszalin
- możliwość podłączenia do dwóch dodatkowych pionów wodno-kanalizacyjnych
Stan techniczny:
- Pomieszczenia do remontu (wystrój, posadzki, instalacje)
- Instalacja ogrzewania miejskiego MEC (wodna i CO do wykonania przez użytkownika)
Dodatkowe opcje w budynku:
- Inne lokale o podobnym przeznaczeniu (biurowe, handlowe, gastronomiczne)
- Możliwość adaptacji na mini-hostel lub mikroapartamenty
- Unikatowy bunkier przeciwatomowy do adaptacji
Oferta nadzorowana przez licencjonowanego pośrednika (nr lic. 14825)
Zapraszamy na prezentację – zobacz możliwości tego wyjątkowego miejsca!
Wszytkie oferty na niniejszej stronie mają charakter informacyjny oraz są zaproszeniem do rokowań zgodnie z Art. 71 KC i nie stanowią oferty określonej w art 66 i następnych KC.



Śledź ofertę