Informacje
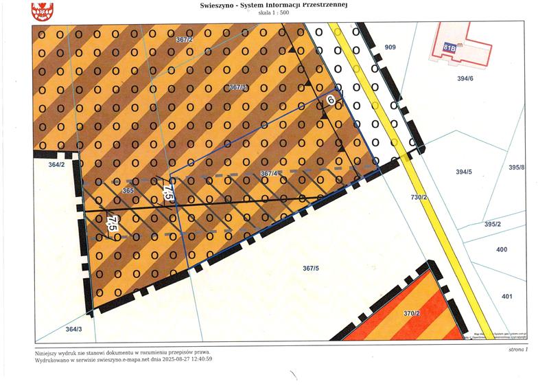
**DZIAŁKA BUDOWLANA** o numerze 367/4, położona w miejscowości #Świeszyno.
Powierzchnia: 1367 m²
Cena: 95.690 zł (70zł za m²)
Działka jest uzbrojona we wszystkie niezbędne media - energia elektryczna, telefon, kanalizacja sanitarna, wodociąg komunalny oraz gaz.
Teren jest płaski i równy, pokryty zieloną trawą, a w pobliżu przepływa strumyk dodając uroku temu malowniczemu miejscu.
⏢ Kształt działki - trapez
Dostęp do działki zapewniony jest drogą utwardzoną, sąsiednie działki są zabudowane.
Dystans 10 kilometrów dzieli działkę od Koszalina, natomiast przystanek autobusowy jest oddalony o zaledwie 20 minut spacerem.
To miejsce jest objęte MPZP (2MN,MW,U/RM)
Ze względu na sposób przebiegu linii niskiego i średniego napięcia istnieje możliwość wybudowania budynku mieszkalnego (zgodnie ze zdjęciem poglądowym)
Wszytkie oferty na niniejszej stronie mają charakter informacyjny oraz są zaproszeniem do rokowań zgodnie z Art. 71 KC i nie stanowią oferty określonej w art 66 i następnych KC.



Śledź ofertę