Informacje
Działka pod budowę domków jednorodzinnych w Strzeżenicach!
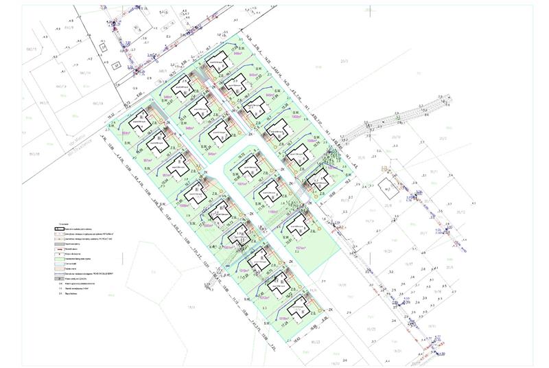
- działka nr 19/2 o pow. 0,3001 ha
Działka sprzedawana jest z udziałem w drodze - dz. nr 19/8
Cena 95 zł za m2 przy zakupie całej działki 0,301 ha i obejmuje udział w drodze wewnętrznej.
Strzeżenice to idealna lokalizacja położona 5 min samochodem od Mielna i 15 min od Koszalina.
W drodze, oznaczonej numerem 19/8 znajdują się media: woda i energia.
Przed podziałem na działki wydane były warunki zabudowy:
- Rodzaj zabudowy: mieszkalna jednorodzinną wolnostojąca w zespole zabudowy
Działka płaska, niezadrzewiona o regularnym kształcie,
Działka świetnie zlokalizowana, dojazd do działki odbywa się drogą publiczną powiatową i drogą wewnętrzną.
Zapraszamy
Wszytkie oferty na niniejszej stronie mają charakter informacyjny oraz są zaproszeniem do rokowań zgodnie z Art. 71 KC i nie stanowią oferty określonej w art 66 i następnych KC.



Śledź ofertę