Informacje
Nowa inwestycja na sprzedaż – domy w Skwierzynce (obrzeża Koszalina).
Jeśli marzysz o nowoczesnym, funkcjonalnym domu w spokojnej okolicy, ta oferta jest właśnie dla Ciebie! Przedstawiamy kameralną inwestycję na terenie miejscowości Skwierzynka, położoną zaledwie 500 m od granicy Koszalina.
Lokalizacja:
Nieruchomość zlokalizowana jest przy ul. Górskiej 5A/1, w cichej i zielonej okolicy Skwierzynki, traktowanej jako dzielnica Koszalina. Wokół znajduje się zabudowa jednorodzinna oraz tereny zielone. Bliskość drogi krajowej S6 oraz szybki dostęp do infrastruktury Koszalina zapewniają doskonałe połączenia komunikacyjne i komfort codziennego życia.
Osiedle obejmuje 12 budynków dwulokalowych w zabudowie bliźniaczej, w standardzie deweloperskim. Każdy lokal posiada:
- powierzchnię użytkową 86,09 m², po podłodze 90,69 m²
- ogródek,
- wiatę.
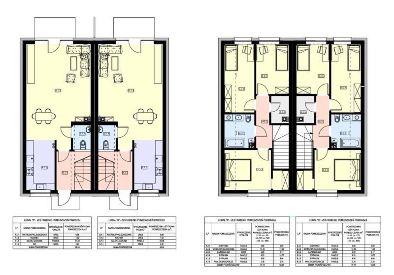
Rozkład pomieszczeń
Rozkład przestrzeni w każdym lokalu zaprojektowano z myślą o wygodzie i funkcjonalności. Optymalne rozmieszczenie pomieszczeń zapewnia komfort życia dla całej rodziny.
PARTER (pow.: 48,34 m²): salon (31,59 m²) z wyjściem na taras i ogródek, kuchnia (7,52 m²), wc (2,27 m²), wiatrołap ze schodami (6,96 m²), na piętro prowadzą schody.
PIĘTRO (pow.: 37,75 m², po podłodze: 42,35 m²): korytarz (3,89 m²), pokoje: (10,45 m², 8,25 m², 8,66 m²), łazianka z wc (4,22 m²), pomieszczenie gospodarcze (2,28m²).
Standard wykończenia mieszkań:
Wykończenie w standardzie developerskim – idealne dla osób, które chcą stworzyć wnętrza dopasowane do własnego gustu: tynki maszynowe, wtyczki, kontakty, ogrzewanie indywidualne gazowe- podłogowe firmy Tece wraz z piecem 2-funkcyjnym 24 kW firmy DE Dietrich ze sterownikiem. Dodatkowo w łazience i wc na parterze kaloryfer – drabinka. Stolarka okienna firmy Veka w kolorze Dąb WOODEC TURNER strona zewnętrzna, od wewnątrz w kolorze białym. Rozprowadzona instalacja do podłączenia urządzeń. Instalacja RTV - w każdym pokoju gniazdko RTV. Wykonane podejście do kominka. Dach: dachówka cementowa. Drzwi wejściowe antywłamaniowe. Schody wewnętrzne wylewane betonowe. Dojście do budynku oraz teren przed nim wyłożony kostką polbrukową lub ażurową. Brama wjazdowa (szlaban) na pilota. Wydzielone ogródki (określony sposób do korzystania). Budynek niepodpiwniczony.
Przedstawione w ofercie zdjęcia przedstawiają wykończenie domu pokazowego.
Cena nieruchomości:
Cena: 690.000 zł brutto zawiera udział do 1/24 w drodze wewnętrznej dojazdowej w kwocie 500 zł brutto.
Kupujący nie płaci podatku PCC w wysokości 2%.
Termin realizacji:
Budynek ukończony. Zostało uzyskane pozwolenie na użytkowanie.
Skontaktuj się z nami, aby uzyskać więcej informacji na temat naszej inwestycji i umówić się na spotkanie.
Twój wymarzony dom może być już w zasięgu ręki.
www.mawig.com.pl
Przedstawiona oferta ma charakter informacyjny i jest zaproszeniem do rokowań zgodnie z Art. 71 KC, nie stanowi oferty określonej w art 66 i następnych KC.
Wszytkie oferty na niniejszej stronie mają charakter informacyjny oraz są zaproszeniem do rokowań zgodnie z Art. 71 KC i nie stanowią oferty określonej w art 66 i następnych KC.



Śledź ofertę