Informacje
Ostatnie domy w zabudowie szeregowej na sprzedaż!
Osiedle Hiacyntowe zaprasza!
Nowe Bielice ul. Hiacyntów!
Pierwszy etap osiedla już gotowy do wprowadzenia!
W bryle budynku garaż jednostanowiskowy!
· Oferujemy do sprzedaży domy w zabudowie szeregowej na nowo powstającym osiedlu w Nowych Bielicach!!! Pełna infrastruktura: energia, gaz, woda i kanalizacja, światłowód,
· Osiedle o nowoczesnym designie oferuje budynki o ciekawie zaprojektowanej architekturze z maksymalnym wykorzystaniem powierzchni użytkowej. Proste bryły budynków z płaskim dachem gwarantują maksymalne wykorzystanie przestrzeni na parterach i Pietrach. Pełna wysokość na każdej kondygnacji ( brak skosów).
· W bryle każdego dwukondygnacyjnego budynku zaprojektowano na parterze jednostanowiskowy garaż z bramą segmentową wjazdową zaopatrzoną w pełną automatykę.
· Budynki oddawane w stanie deweloperskim, istnieje możliwość wykończenia domu pod klucz.
· Każdy budynek posadowiony na własnościowej działce. Nie ma współwłasności pod budynkiem.
Metoda budowania:
Budynki wybudowane metodą tradycyjną. Ściany fundamentowe żelbetowe, ściany konstrukcyjne murowane, stropy monolityczne, dach płaski ocieplony styropianem pokryty papą,; ocieplenie: elewacja 20cm styropian, dach od 20-30 cm styropian, posadzki parteru 28cm styropian, posadzka pietra 5cm styropian,
Posadzki cementowe, tynki gipsowe kat. III wykonane na mokro, drzwi zewnętrzne wejściowe, brama garażowa segmentowa, instalacje elektryczne podtynkowe, inst. Wod -kan, co i cwu z pieca dwufunkcyjnego gazowego.
· Media: Woda i kanalizacja z sieci gminnej, gaz z sieci, energia.
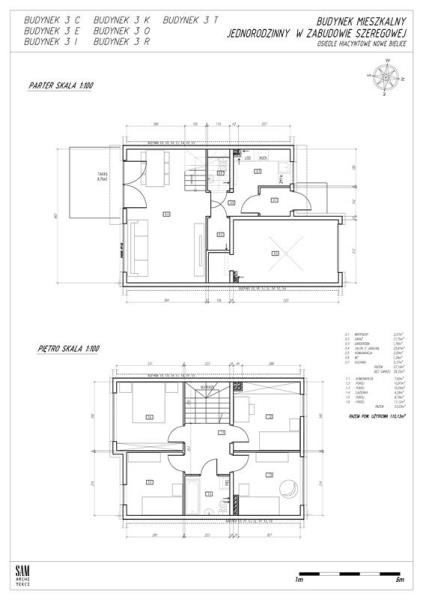
Oferta dotyczy domu w zabudowie szeregowej o powierzchni całkowitej 110,13 m2.
Rozkład pomieszczeń:
Parter: wiatrołap (2,07 m2), garderoba (1,70 m2) salon z jadalnią (25,87 m2), komunikacja (3 m2), WC (1,34 m2), kuchnia (5,37 m2), garaż (17,75 m2).
Piętro: komunikacja (7,92 m2), 4 pokoje (10,97 m2; 10,04 m2; 8,70 m2; 11,12 m2), łazienka (4,28 m2)
· Budynki bezczynszowe, pełna własność w gruncie!.
Lokalizacja:
Całe osiedle obejmować będzie docelowo 40 budynków, dojazd do osiedla drogą asfaltową na osiedlu droga wewnętrzna wyłożona polbrukiem.
Bardzo atrakcyjna lokalizacja gwarantuje nowym właścicielom ciszę i spokój z dala od natężenia ruchu i hałasu
7 km od centrum Koszalina
3 km od trasy S6
15 km od Morza Bałtyckiego
Zaprojektuj swoją przestrzeń na etapie prac budowlanych, do dyspozycji klientów gotowe aranżacje wykonane przez biuro architekta wnętrz!
Podana cena, jest ceną brutto zawierającą podatek 8% VAT, kupujący zwolniony z podatku od czynności cywilno-prawnych (PCC) 2%
Zapraszamy po więcej informacji w biurze.
Zapraszamy na prezentacje budynków w odsłonie deweloperskiej jak również w wersji wykończonej.
Wszytkie oferty na niniejszej stronie mają charakter informacyjny oraz są zaproszeniem do rokowań zgodnie z Art. 71 KC i nie stanowią oferty określonej w art 66 i następnych KC.



Śledź ofertę