Informacje
Zapraszamy do zapoznania się z wyjątkową ofertą domu wolnostojącego położonego w Karwicach w gminie Malechowo.
Karwice to miejscowość położona zaledwie 16 km od morza w Darłówku, 7 km od Sławna i 30 km od Słupska.
Nieruchomość usytuowana na przestronnej, prostokątnej działce o łącznej powierzchni 1294 m², na której znajduje się również budynek gospodarczy o powierzchni 15 m².
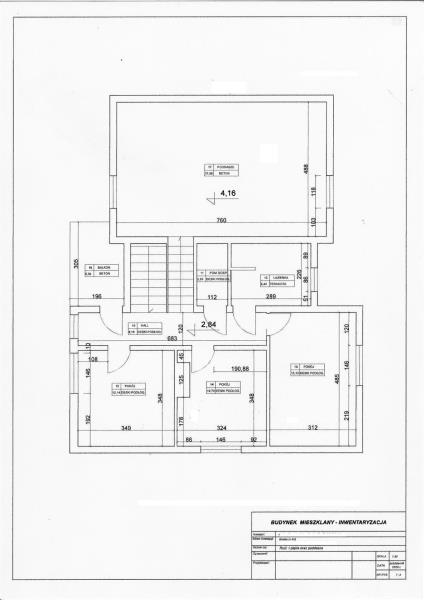
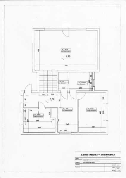
Dom dwukondygnacyjny, podpiwniczony z dodatkową przestrzenią na poddaszu. Składa się z pięciu ustawnych pokoi, kuchni i jadalni, która tworzy przyjemną przestrzeń do codziennych posiłków. Jednak serce domu stanowi duży, jasny i przestronny salon z wyjściem na balkon.
Dom ogrzewany jest nowoczesnym piecem TEKLA piątej generacji z zasobnikiem na pellet gwarantujący efektywne i ekologiczne ogrzewanie. Woda jest podgrzewana za pomocą dużego bojlera z firmy Kospel o pojemności 250 litrów, a dodatkowym źródłem ciepła jest kominek, który rozprowadzony jest do łazienki i pokojów.
Piwnica może pełnić funkcję odrębnego, samodzielnego mieszkania, idealnego do różnorodnych celów mieszkaniowych lub komercyjnych.
Nieruchomość posiada miedzianą instalację elektryczną.
Brama wjazdowa otwierana zdalnie zwiększa komfort użytkowania, a monitoring na budynku podnosi poziom bezpieczeństwa i prywatności.
Do domu doprowadzony jest światłowód, umożliwiający korzystanie z internetu na najwyższym poziomie.
Na posesji znajduje się parking wyłożony płytą ażurową, zapewniający miejsce dla co najmniej 5 samochodów.
Na działce posadzone są liczne rośliny i nasadzenia tworzące piękną, zieloną ozdobę otoczenia. Zewnętrzny zadaszony taras to idealne miejsce na spędzanie wolnego czasu na świeżym powietrzu.
Podatek od nieruchomości to jedyne 440 zł rocznie.
Miejscowość Karwice to urokliwa okolica otoczona zielenią, z utwardzoną drogą dojazdową do nieruchomości. Dodatkowym atutem jest bliskość drogi ekspresowej S6, zapewniającej szybki i wygodny dojazd w kierunku Gdańska lub Szczecina.
Wszystkie informacje zawarte w ofercie pochodzą z oświadczenia właściciela.
Zapraszamy na prezentację, aby przekonać się osobiście o wszystkich zaletach tej wyjątkowej nieruchomości.
Wszytkie oferty na niniejszej stronie mają charakter informacyjny oraz są zaproszeniem do rokowań zgodnie z Art. 71 KC i nie stanowią oferty określonej w art 66 i następnych KC.



Śledź ofertę